Вытяжка Smeg KDH12WLD
Руководство по эксплуатации: (скачать)
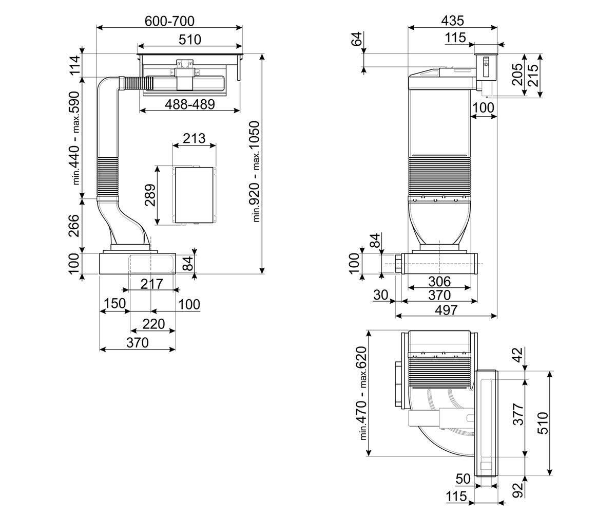
Компактная вытяжка черного цвета из основной серии SMEG предназначена для быстрой очистки воздуха от гари и неприятных запахов, образующихся в процессе готовки. Встраиваемая в столешницу модель не занимает много места, поэтому станет идеальным решением для любой современной кухни. Прибор может функционировать как в режиме отведения, так и рециркуляции воздушного потока (диаметр воздуховода - 150 мм). Жироулавливающие фильтры из алюминия (2 шт) поставляются в комплекте, они подходят для мытья в посудомоечной машине.
Модель оснащена тихим и экономичным двигателем мощностью 145 Вт, максимальная производительность достигает 550 м3/ч. Интуитивно понятное сенсорное управление и встроенный LED-дисплей обеспечивают комфортную и безопасную эксплуатацию устройства. Поддерживается несколько скоростей работы, в том числе специальный интенсивный режим. Есть удобная опция автоматического выключения и индикатор загрязнения фильтрующих элементов. Дополнительные аксессуары (приобретаются отдельно): металлическая рамка для направления потока всасывания, многоразовый угольный фильтр CFKDH12HP.
Технические характеристики
- Тип вытяжки Встраиваемая в столешницу
- серия SMEG Основная линейка
- Производительность 550 м3/час
- Кол-во скоростей 4
- Цвет Черный
- Тип управления вытяжки Сенсорный
- Высота 92 см
- Ширина 11.5 см
- Глубина 51 см
- Монтаж В столешницу
- Стекло Есть
- Врезной блок Есть
- Страна-производитель Не указана
- Режимы работы отвод/рециркуляция
- Минимальный уровень шума 40 Дб.
- Диаметр воздуховода 150 мм.
- Количество ламп освещения 1 шт.
- Мощность каждой лампы 40 Вт.
- Жировой (алюминиевый) фильтр в комплекте Есть
- Дополнительные функции интенсивный режим
Черное стекло
Управление Touch control
LED-дисплей, белые индикаторы
Функции/ опции
3 скорости + интенсивный режим (10 мин.)
Автоматическое выключение
Уровень шума на 1-й скорости 40 дБ(А)
Индикация загрязнения угольного фильтра
Жироулавливающие фильтры алюминиевые 2 шт.
Диаметр воздуховода 150 мм
Технические характеристики
Мощность подключения 145 Вт
Мощность мотора 145 Вт
Напряжение 220-240 В
Частота тока 50-60 Гц
Дополнительные аксессуары
FLMSTPKDH12 - Металлическая рамка для направления потока всасывания
CFKDH12HP - Высококачественный многоразовый угольный фильтр. Металлическая рамка в комплекте.

Уважаемые покупатели!
Услуги по доставке заказов производит независимая транспортная компания.
Доставка осуществляется не ранее, чем на следующий день после заказа, по согласованию с менеджером магазина!
Основным условием доставки является нахождение покупателя на адресе принятия заказа весь интервал доставки, заранее определенный с продавцом.
Доставка заказанного товара осуществляется с 10-18.
Убедительная просьба присутствовать по указанному адресу доставки в течение дня!
Доставка по Москве:
- Доставка осуществляется в коридор квартиры без дальнейшего проноса;
- Занос бытовой техники в квартиру осуществляется при наличии свободного прохода. Работникам транспортной компании категорически запрещается снимать отдельные части приборов (дверцы, ручки и т. д.), мешающие транспортировке товара – в дальнейшем это может послужить причиной отказа сервисного центра от гарантийного ремонта;
- Стоимость доставки одной позиции в пределах МКАД отображена в карточке товара и при заказе включается в стоимость товара. Если заказывается более одного предмета, то общая стоимость доставки представляет собой сумму между полной стоимостью доставки на старшую модель (наибольшая стоимость доставки из всех товаров в заказе) и стоимостью доставки на последующие товары, с учетом скидки, представляемой при заказе нескольких позиций по одному адресу. Приоритетность первой единицы товара определяется большей стоимостью доставки. Аксессуары, если заказываются без техники, доставляются платно.
Доставка за пределы МКАД:
- Стоимость доставки по Москве + 40 руб./км. от МКАД
Доставка по Санкт-Петербургу:
Доставка заказанного товара осуществляется в интервале с 11-00 до 18-00 часов.
Убедительная просьба присутствовать по указанному адресу доставки в течение дня!
- Доставка осуществляется в коридор квартиры без дальнейшего проноса;
- Занос бытовой техники в квартиру осуществляется при наличии свободного прохода. Работникам транспортной компании категорически запрещается снимать отдельные части приборов (дверцы, ручки и т. д.), мешающие транспортировке товара – в дальнейшем это может послужить причиной отказа сервисного центра от гарантийного ремонта;
- Стоимость доставки одной позиции в пределах КАД отображена в карточке товара и при заказе включается в стоимость товара. Если заказывается более одного предмета, то общая стоимость доставки представляет собой сумму между полной стоимостью доставки на старшую модель (наибольшая стоимость доставки из всех товаров в заказе) и стоимостью доставки на последующие товары, с учетом скидки, представляемой при заказе нескольких позиций по одному адресу. Приоритетность первой единицы товара определяется большей стоимостью доставки. Аксессуары, если заказываются без техники, доставляются платно.
Доставка в Тверь и Рязань:
- Каждую среду;
- Доставка осуществляется в коридор квартиры без дальнейшего проноса;
- Занос бытовой техники в квартиру осуществляется при наличии свободного прохода. Работникам транспортной компании категорически запрещается снимать отдельные части приборов (дверцы, ручки и т. д.), мешающие транспортировке товара – в дальнейшем это может послужить причиной отказа сервисного центра от гарантийного ремонта;
- Стоимость доставки одной позиции в пределах города отображена в карточке товара и при заказе включается в стоимость товара. Если заказывается более одного предмета, то общая стоимость доставки представляет собой сумму между полной стоимостью доставки на старшую модель (наибольшая стоимость доставки из всех товаров в заказе) и стоимостью доставки на последующие товары, с учетом скидки, представляемой при заказе нескольких позиций по одному адресу. Приоритетность первой единицы товара определяется большей стоимостью доставки. Аксессуары, если заказываются без техники, доставляются платно.
Доставка в Калугу и Тулу:
- Каждый четверг;
- Доставка осуществляется в коридор квартиры без дальнейшего проноса;
- Занос бытовой техники в квартиру осуществляется при наличии свободного прохода. Работникам транспортной компании категорически запрещается снимать отдельные части приборов (дверцы, ручки и т. д.), мешающие транспортировке товара – в дальнейшем это может послужить причиной отказа сервисного центра от гарантийного ремонта;
- Стоимость доставки одной позиции в пределах города отображена в карточке товара и при заказе включается в стоимость товара. Если заказывается более одного предмета, то общая стоимость доставки представляет собой сумму между полной стоимостью доставки на старшую модель (наибольшая стоимость доставки из всех товаров в заказе) и стоимостью доставки на последующие товары, с учетом скидки, представляемой при заказе нескольких позиций по одному адресу. Приоритетность первой единицы товара определяется большей стоимостью доставки. Аксессуары, если заказываются без техники, доставляются платно.
Доставка во Владимир:
- Каждый нечётный четверг;
- Доставка осуществляется в коридор квартиры без дальнейшего проноса;
- Занос бытовой техники в квартиру осуществляется при наличии свободного прохода. Работникам транспортной компании категорически запрещается снимать отдельные части приборов (дверцы, ручки и т. д.), мешающие транспортировке товара – в дальнейшем это может послужить причиной отказа сервисного центра от гарантийного ремонта;
- Стоимость доставки одной позиции в пределах города отображена в карточке товара и при заказе включается в стоимость товара. Если заказывается более одного предмета, то общая стоимость доставки представляет собой сумму между полной стоимостью доставки на старшую модель (наибольшая стоимость доставки из всех товаров в заказе) и стоимостью доставки на последующие товары, с учетом скидки, представляемой при заказе нескольких позиций по одному адресу. Приоритетность первой единицы товара определяется большей стоимостью доставки. Аксессуары, если заказываются без техники, доставляются платно.
Расценки за ручной подъём:
- 1-ый этаж — бесплатно;
- варочные поверхности, вытяжки выдвижного типа, СВЧ – 50 руб./эт.;
- духовые шкафы, вытяжки 60, 90 см, купольные вытяжки, газовые и электрические плиты – 200 руб./эт.;
- стиральные, сушильные машины, посудомоечные машины, холодильники, кондиционеры – 200 руб./эт.;
- холодильники шириной больше 70см – 300 руб./эт.;
- холодильники Side-by-Side – 500 руб./эт.;
- негабаритный и крупногабаритный товар – 500 руб./эт.(определяется уполномоченным сотрудником Подрядчика перед выполнением доставки исходя из следующих критериев: габаритные размеры единицы товара cвыше 230 см. одного из параметров (длина, ширина, высота, глубина), либо свыше 120 см. в диаметре, либо вес единицы товара свыше 100 кг.);
- ручной пронос после первых 20м, каждые последующие 20м приравнивается к стоимости подъема за один этаж.
Доставка транспортными компаниями по России:
- Деловые Линии - Калькулятор
- ПЭК - Калькулятор
- ЖелДорЭкспедиция - Калькулятор
- БайкалСервис - Калькулятор
- Скиф-Карго - Калькулятор
Порядок оформления заказов по России:
1. Оформление заказа
Сделайте заказ на нашем сайте или по многоканальному телефону +7(495)980-7249
Обязательно укажите Ваш контактный телефон и адрес электронной почты.
После уточнения всех деталей заказа на Ваш адрес электронной почты будет выслан счет на оплату товара.
Внимание: стоимость услуг по доставке товара оплачивает получатель.
2. Оплата товара
Оплатить товар может юридическое или физическое лицо в любом банке России.- Если Вы выбрали компанию и хотите, чтобы мы доставили груз до склада транспортной компании, то стоимость доставки включается в счет. Тарифы на доставку по г.Москве см. выше.
- Если транспортная компания забирает товар с нашего склада, то Вы по счету оплачиваете только стоимость товара.
- Счет для оплаты товара действителен в течение 3 банковских дней. Товары резервируются по факту поступления денежных средств на наш рассчетный счет.
- Если к моменту поступления оплаты заказанного товара не окажется в наличии, покупателю будет предложена альтернатива или возврат затраченных средств. Внимание: отправка товара наложенным платежом не производится.
3. Отгрузка товара
После поступления оплаты Ваш заказ формируется на складе интернет магазина. Как правило, это происходит в течение 3 рабочих дней.
В зависимости от выбранной транспортной компании, заказ направляется собственной курьерской службой до сборного пункта или отгружается на нашем складе.
В целях обеспечения сохранности груза в процессе транспортировки, на крупногабаритные и дорогостоящие товары транспортные компании могут применить дополнительную упаковку - деревянную обрешётку, защищающую Ваш груз от механических повреждений.
После передачи заказа в транспортную компанию Вам по электронной почте будет отправлено уведомление с номером транспортной накладной, по которой Вы сможете отследить прохождение своего груза на сайте транспортной компании
4. Получение товара
С ожидаемыми сроками доставки заказа до Вашего города можно ознакомиться на сайте выбранной транспортной компании.
Некоторые ТК предоставляют услугу "доставка до двери" - если Вы воспользуетесь ею, то заказ доставят на дом. В противном случае, ТК осуществляет доставку до своего склада в Вашем городе.
Для получения груза в ТК необходимо иметь: для физических лиц – паспорт гражданина РФ, для юридических лиц – паспорт гражданина РФ и доверенность на получение груза.
При получении заказа обязательно убедитесь в отсутствии повреждений упаковки (трещин, помятостей, следов воздействия жидкостей и т. д.). В случае обнаружения нарушений упаковки составляется акт о повреждении груза (представители транспортной компании знают, как составляются подобные документы). При этом не следует получать отправление и подписывать накладную.
Претензии к внешнему виду доставленного Вам товара в соответствии со ст. 458 и 459 ГК РФ Вы можете предъявить только до передачи Вам товара продавцом. Ссылки на загрязнённость товара, недостаточную освещённость помещения, поторапливания со стороны экспедиторов и прочие причины, не являются основанием для невыполнения Вами требований ст. 484 ГК РФ.
Обязательно убедитесь в отсутствии дефектов и комплектности товара, прежде чем расписаться в товарном чеке.
ПОМНИТЕ! Претензии к внешнему виду доставленного Вам товара в соответствии со ст. 458 и 459 ГК РФ Вы можете предъявить только до передачи Вам товара продавцом. Ссылки на загрязнённость товара, недостаточную освещённость помещения, поторапливания со стороны экспедиторов и прочие причины, не являются основанием для невыполнения Вами требований ст. 484 ГК РФ.
Вытяжка Smeg KDH12WLD в интернет-магазине по цене 197390 руб. с доставкой по Москве МО, и по всей России. Для того, чтобы купить данный товар, положите его в корзину или позвоните по телефону +7 (495) 980-7249. Заказ рекомендуем делать через корзину сайта, чтобы избежать ошибок в адресе доставки и получателе.
Все товары привозятся в оригинальной упаковке и вскрываются в Вашем присутствии. Информация на сайте носит справочный характер и не является публичной офертой. Компания Smeg оставляет за собой право на внесение изменений в конструкцию, дизайн и комплектацию приборов без предварительного уведомления.









